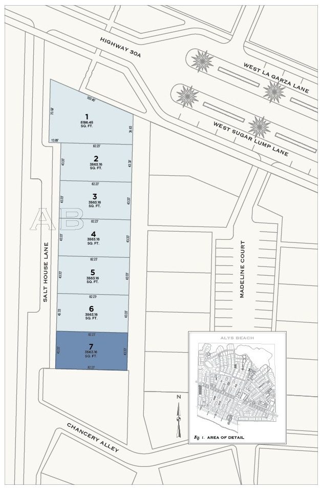
• AB7 Salt House Lane
    $2,595,000
    Buyer Broker Compensation, 2.5%
    Location
    South 30A
    Status
    Available

    Alys Beach is pleased to announce the offering of our new lot AB7. Located on the beach side of Scenic Hwy 30A fronting a pedestrian path that leads to Béla Gray Green and beach access.

    -86.03305843423206, 30.28523417336049

    Location & Proximity Map